Our Projects
Feeling Social?
Magee Barracks, Kildare
| Project: | Magee Barracks, Kildare |
| Completion Date: | Ongoing |
| Client: | Ballymount Properties |
| Project Value: | €110m |
| Services Provided: | Civil & Structural Engineering & Project Supervisor Design Process |
| Project Size: | 20.8 Hectares |
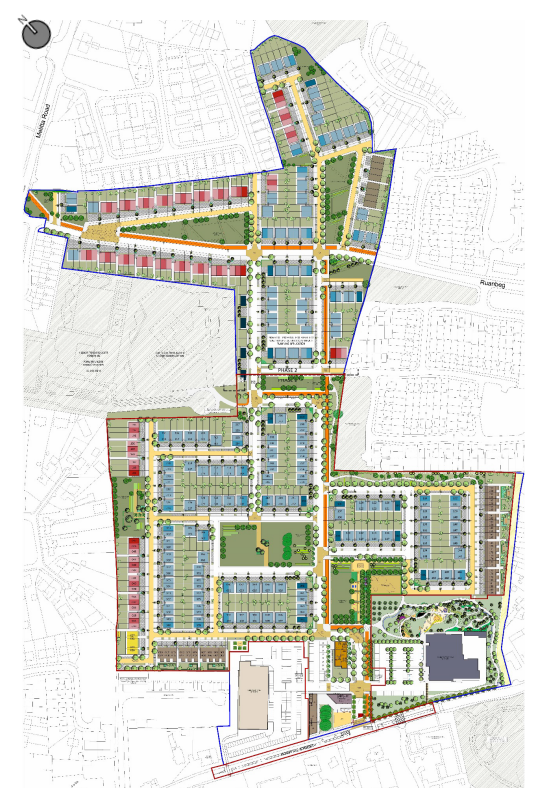
Project Description
The development involves the construction of 480 residential units, over two distinct phases, complete with crèche, retail units and café on the former Magee Barracks, Kildare Town.
The project involves the demolition of 16 no. concrete structures and a water tower, and includes the treatment of invasive species. The existing site is heavily serviced, involving the diversion of foul and rising foul drainage. Both stages require submission through the Strategic Housing Development planning process.
Garland are providing civil and structural engineering services but with the added scope to provide the Environmental Impact Assessment Reports (EIAR) of Soil and Water and reports titled Environmental Construction Management Plan and Demolition and Construction Waste Management Plan. Garland led the scoping and procurement of the site investigation works, infiltration testing, drainage CCTV and topographical survey.